发布时间:2023-11-02 18:11:56 浏览次数:554次
使用范围
产品主要用于化肥、焦化、城市煤气、冶金、建材、碳素、陶瓷等行业的气体净化,用以回收煤气、焦炉气中的焦油,同时去除其中的粉尘、水雾等杂质,达到物料回收和气体净化双重效果,对保证工艺流程中后工段设备的正常稳定运行也起着至关重要的作用。
结构组成
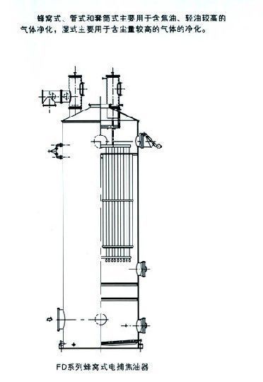
本产品由恒流高压直流电源和捕焦本体(机械塔体)两大部分组成,前者选用HL-Ⅲ恒流型静电沉积用高压直流电源;后者结构上可选用TD套筒式(同心圆式),GD管式,FD蜂窝式或SJD湿管式。四种结构的本体均主要由筒体和放电极(电晕极)以及吸捕极(沉淀极)组成。
工作原理
高压直流电源产生的负高压,接入电晕极(阴极),它与沉淀极(阳极)之间产生电场,电场强度超过一定极限后在阴阳两极间即产生电晕放电。此时流经电场区的气体发生电离,产生大量的离子和电子。周围可以听见强烈的电磁风声。光线暗时可见紫兰色电晕。通过电场的煤气中的焦油、粉尘、水雾等粒子与离子或电子结合而荷电,在电场力的作用下向两极运动。由于电子质量小,运动速度快,空间分布广,所以主要是荷负电的粒子向沉淀极运动。到达沉淀极板中和后,依靠残存的静电引力和分子间凝聚力首先吸附于沉淀极,而后靠自身重力沿极板下落,通过焦油出口排出。

本体分类
蜂窝式、列管式和套筒式只要用于含焦油、轻油较高的气体净化,湿式重要用于含尘量较高的气体的净化


下一条:YTJC高压静电除尘器